GB Mantels Warwick

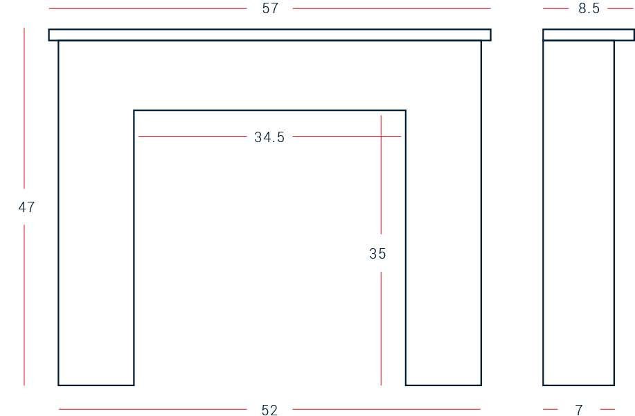
  • 57″ Width
  • Available in MDF finish pastel colours
  • British made
  • 2 Diferent LED downlights available HERE (cost option)
  • Made to measure available (cost option)